
New Ownership for Cincinnati Boutique Hotel
December 11, 2025
12033 BEST PLACE
20,000 SF of Industrial, Build-to-Suit Space Available in Cincinnati, OH 45241

QUICK LINKS
Class A Industrial Build-to-Suit Development Opportunity Near I-275 & I-75
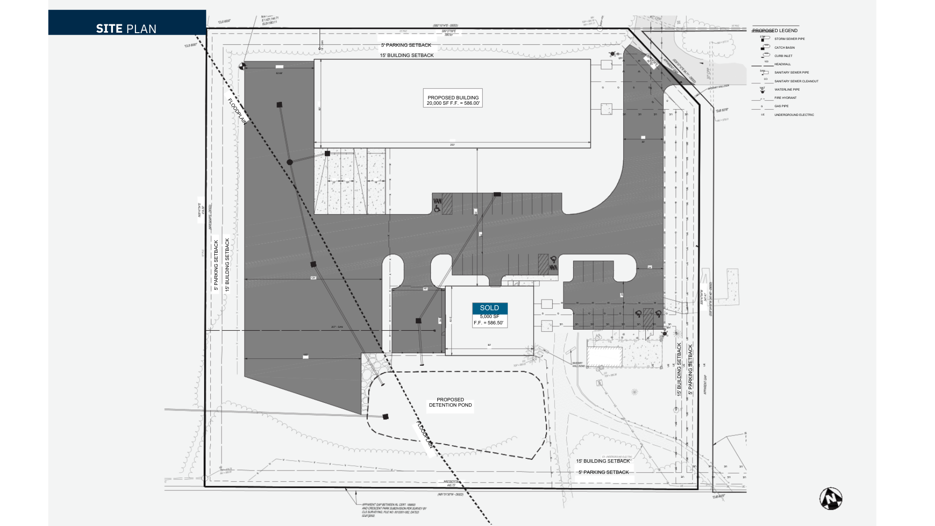
Located in the heart of Sharonville’s premier industrial corridor, 12033 Best Place presents a 20,000 SF Class A building opportunity designed for warehouse, distribution, manufacturing, and flex users. Positioned on 2.13 acres with immediate access to I-275 and I-75, this shovel-ready, Cincinnati build-to-suit site offers long-term operational efficiency in one of Greater Cincinnati’s strongest logistics markets.
Developed with construction services by Kiesland Development (partnered with Butler Manufacturing), this fully insulated pre-engineered metal facility is designed to deliver durability, flexibility, and performance for growing industrial users. With negotiable sale or lease terms and available tax abatement incentives, this project offers both strategic location and financial advantage.
Property Highlights – Cincinnati Build-to-Suit Industrial Facility
-
20,000 SF Total Building Area (80’ x 250’)
-
19,308 SF Warehouse Space
-
692 SF Office Space (100% HVAC)
-
24’ Clear Height
-
2.13 Acre Site with Outdoor Storage Potential
-
Pre-Engineered Metal Construction – Fully Insulated
-
480/277V, 3-Phase, 400 Amp Electrical Service (Expandable)
-
Dock Door (To Suit) + 14’ x 14’ Drive-In Door
-
Heavy-Duty Truck Court for Distribution & Logistics Operations
-
30 Parking Spaces (Expandable)
-
Wet Sprinkler System
-
Property Tax Abatement (Pre-94 CRA) Available
-
For Sale or Lease – Negotiable Terms

Why Sharonville, Ohio?
Sharonville continues to be one of the most desirable industrial submarkets in Greater Cincinnati due to:
-
Direct interstate access
-
Strong regional workforce availability
-
Proximity to major distribution routes
-
Established industrial infrastructure
This location allows tenants and owners to reduce transportation costs, improve delivery timelines, and scale operations efficiently.
Designed & Built for Performance
As a leading Cincinnati commercial contractor and design-build partner, Kiesland specializes in industrial construction, warehouse development, and build-to-suit solutions throughout Southwest Ohio and Northern Kentucky. Our integrated approach ensures cost control, streamlined timelines, and long-term value from preconstruction through completion.
If your company is exploring a new warehouse, distribution center, or manufacturing facility in the Cincinnati region, 12033 Best Place offers a turnkey opportunity in a proven industrial market.








